Share:
Description
- • Well known Village Public House & Restaurant
- • Situated in popular village of Kerry, 3 miles from Newtown
- • Spacious Owners Accommodation over
- • In good decorative order
- • Main Bar, Lounge Bar, Pool Room, WCs, Cellar
- • Fully equipped Catering Ktchen, Restaurant with 24 covers
- • First Floor 4 Bedroom Apartment with Lounge, Kitchen, Bathroom & Ensuite
- • Generous car parking. Beer garden
- • CEPC - C (71) Exp 27.04.2035
A well known village public house situated in the popular village of Kerry. The whole property has undergone a full refurbishment including solar panels, batteries and a new boiler and is found in good decorative order with spacious owners accommodation.
Situated in a plot of 0.3 acre. Kerry is a popular local village with school, shop/post office, hall and within 3 miles of the market town of Newtown. A number of local tourist attractions include Powis Castle, Offa's Dyke with the larger market town of Shrewsbury and English borders all within easy reach. Established business with strong wet sales also utilising the excellent beer garden at the rear. Previously run with the restaurant from its fully equipped catering kitchen and pleasant dining room. Spacious owners 4-bedroomed accommodation over. The purchase would be ideal for somebody within the trade or someone wishing to start up with full training provided by the current owner.
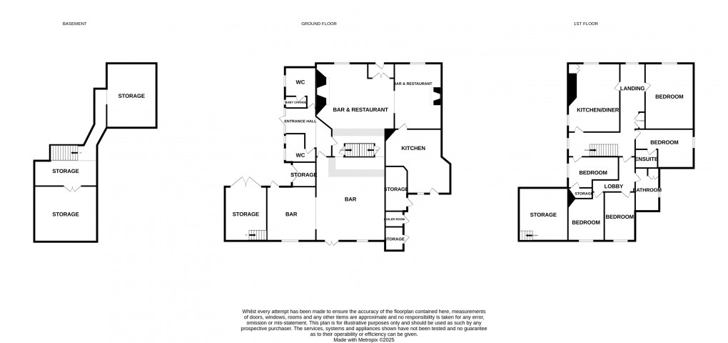
Ground Floor
Side Entrance Hall with upvc door, tiled floor.
Ladies Toilets with 3 WCs, washbasin, baby changing room.
Gents with 2 urinals, washbasin, WC.
Main Bar with bar servery, bench seating, French doors to covered rear area, wood burner in brick inglenook, open through to Pool Room.
Lounge Bar with bar servery, front entrance door, wooden flooring, wood burning stove, open through to
The Restaurant with seating for 24 and 14 in Dining Lounge.
Fully equipped Catering Kitchen with extractor unit, double drainer stainless steel sink unit, wash basin, pantry off, rear entrance door,
Laundry Room. Boiler Cupboard housing the LPG central heating boiler. Freezer Room.
From the bar servery area is a staircase down to the Cellar with 2 rooms and a barrel shute.
First Floor:
(approached from the bar servery is a staircase to the spacious first floor apartment being owners accommodation) and comprising
Spacious Landing
Kitchen fully fitted with base, drawer and wall units, built-in double oven, plumbed for dishwasher, double Belfast sink, woodblock worktop surfaces, integrated fridge/freezer, gas hob with extractor hood over.
Living with fire surround.
Bedroom (1) with Ensuite Shower Room with shower cubicle, WC, washbasin.
Inner Landing with
Bathroom with bath and shower over, WC, washbasin.
Bedroom (2)
Bedroom (3)
Bedroom (4)
The property has excellent car parking with Garage with Store over. Covered rear seating area. Beer garden with lawn. External bar. Bench seating. LPG tank. Log store. In all the plot and building extends to an area of 0.3 acre.
SERVICES
Mains electric. LPG central heating. Mains water. Mains drainage. Solar panels.
ACCOUNTS are available to bona fide interested parties.
ASKING PRICE includes goodwill, fixtures & fittings and stock at valuation
Please note a charge of £36 per person will be applied to cover mandatory Anti-Money Laundering checks for Buyers
Directions
From our office in Newtown proceed on the A489 towards Kerry. On arriving in the village, pass the Church on the left, and the property is situated a short distance on the left hand side.What3words: ///miracles.paintings.remind
Council Tax Band: B
Floorplan
Market your property
with Morris Marshall & Poole
Book a market appraisal for your property today. Our virtual options are still available if you prefer.